925 Sanders Road C, Cumming, GA

$3,800

Previous Next

2.34

Acres

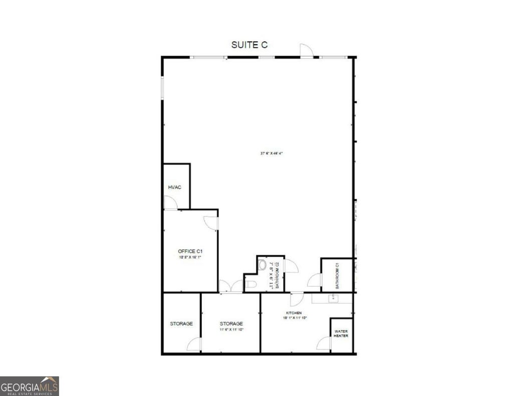
About 925 Sanders Road C

Prime office space available for lease in a thriving area of Cumming, GA. Excellent visibility with road frontage on Sanders Road, providing convenient access to GA 400 and just minutes from Hwy 20 (Buford Hwy). The property is surrounded by established medical and professional offices and is located less than one mile from the Northside Hospital Forsyth campus. The suite offers ample parking and a peaceful wooded view. The layout includes, large open area with a front window, two private offices, two restrooms, a kitchen, and a storage room - ideal for medical, professional, or administrative use. Additional spaces are available within the same building, including Unit B (3,600 SF) on the lower level, featuring eight private offices, a waiting area, a reception workspace, two restrooms, a breakroom with a kitchenette, a meeting room, and three storage rooms, as well as several smaller offices on the main level, offering flexible leasing options. Showings by appointment only during business hours (9:00 AM - 5:00 PM).

Features of 925 Sanders Road C

MLS® # 10620007
Price $3,800
Bathrooms 0.00
Acres 2.34
Year Built 2000
Type Commercial Lease
Status New

Community Information

Address 925 Sanders Road C
Subdivision NONE
City Cumming
County Forsyth
State GA
Zip Code 30041

Amenities

Utilities Cable Available, Electricity Available, Natural Gas Available, Phone Available, Underground Utilities, Water Available
Parking Spaces 10
Parking Parking Lot
Is Waterfront No
Has Pool No

Interior

Heating Central
Cooling Central Air
Fireplace No

Exterior

Lot Description Level
Roof Metal
Construction Block

Additional Information

Days on Market 5
Zoning O&I
Foreclosure No
Short Sale No
RE / Bank Owned No

Listing Details

OfficeMaximum One Premier Realtors

Listing Map

Request a Showing

Provide a valid email address.
When would you like to view this property?